
注册地址:深圳市龙华区观澜街道广培社区高尔夫大道5号5O
中国总装交付工厂地址:江西省赣州市赣州经济技术开发区秋山科技园B2栋
电话:400-800-6237
手机:136-0300-3362
邮箱: zhp.liu@v-ken.cn
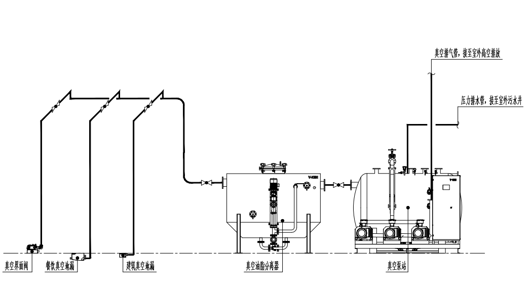
在城市化进程加速、建筑空间日趋多元化的今天,餐饮行业的发展面临着机遇与挑战。厨房排水系统作为餐饮运营的“隐形血脉”,其性能直接影响着环境卫生、运营效率和顾客体验。传统的重力排水系统因依赖坡度,常常在复杂空间和高要求场景下捉襟见肘。而餐饮真空排水系统以其密闭输送、灵活布管、高效卫生等突出优势,正成为现代餐饮空间排水方案的革新者和引领者,广泛应用于地下商业、历史建筑、高端餐饮、高卫生等级场所等,助力餐饮行业迈向更洁净、更智能、更可持续的未来。
一、地下商业空间:攻克空间与结构难题的排水利器
在地下商业空间,如大型商场负一层餐饮区、人防工程上盖餐饮、地铁商业配套等,排水问题尤为棘手。这些空间往往位于建筑下方,远离市政管网,传统重力排水需大范围降板和深挖集水坑等,施工难度大、成本高、周期长。真空排水系统凭借负压抽吸原理,可实现管道水平铺设,无需依赖重力流,大幅降低施工难度和土建成本。不仅如此,系统全程密闭设计,有效隔绝异味和有害气体,防止地下空间空气污染,保障员工与顾客的健康与舒适,为地下商业注入新的活力。
二、厨房布局受限:灵活适配,释放空间潜能
许多餐厅受制于建筑结构或空间限制,后厨面积狭小,设备布局紧凑,或烹饪设备(如灶台、蒸箱、洗碗机)远离主排水立管,无法布置传统排水沟。餐饮真空排水系统采用小口径(通常为40-100mm)管道,布管灵活,可沿墙、穿梁、绕设备敷设,无需大规模开槽或结构改动。各排水点通过真空排水末端接入系统,在负压作用下迅速抽送污水至收集装置,再由真空泵站统一排入市政管网或后续处理设施中。这种设计不仅节省空间,提升厨房布局自由度,还大幅缩短施工周期,助力餐厅高效运营,为创新型餐饮空间提供坚实支撑。
三、历史建筑与保护性建筑:零破坏改造,守护建筑文脉
在古建筑、文物保护单位或历史建筑改造为餐厅时,对原结构的保护至关重要。传统排水系统需大规模开槽、打洞,极易破坏建筑本体,影响其历史价值和结构安全。真空排水系统则可实现“无损接入”,管道可沿建筑现有的梁、天花板或装饰结构隐蔽敷设,很大限度减少对建筑的干预。系统密闭性强,杜绝渗漏风险,有效保护建筑结构免受水蚀。在不损害历史风貌的前提下,实现现代化功能升级,让历史建筑焕发新生,为城市文脉的延续提供技术保障。

四、高端餐饮场所:洁净与气味控制的解决方案
[敏感词]餐厅、精品私房菜、五星级酒店厨房、日料店等高端餐饮场所,对环境洁净度、气味控制要求很高。传统地漏和排水接口易成异味源头,水槽下方管道易残留食物残渣,影响整体卫生和用餐体验。真空排水系统全程密闭输送,负压可快速将含油废水抽走,减少管道内残留,降低堵寒风险,同时避免异味逸散,保证厨房空气清新,提升顾客体验和品牌形象,为高端餐饮树立行业标杆。
五、高卫生标准场所:筑牢食品安全防线
在中央厨房、食品加工厂、航空配餐、学校或医院食堂等场所,对卫生防疫有严格要求。传统排水系统存在接口渗漏、地漏干涸、管道积污等隐患,易成为细菌滋生和交叉污染的温床。真空排水系统全程密闭输送,从源头上减少了害虫(蟑螂、老鼠等)通过排水管进入室内的通道,同时避免了交叉污染的风险,为高卫生等级场所提供坚实保障,守护舌尖上的安全。
六、技术与应用的创新融合:智能化与绿色化趋势
餐饮真空排水系统不仅解决了特殊场景下的技术瓶颈,更在智能化与绿色化方面展现巨大潜力。现代真空排水系统可集成智能监控、远程运维、故障报警等功能,通过物联网技术实现运行状态实时监测、能耗分析、自动调度,提升运维效率,降低管理成本。系统节水性能优越,污水集中处理,减少环境污染,助力绿色建筑与可持续发展。在“双碳”目标和智慧城市建设背景下,真空排水系统正向数字化、智能化方向加速迈进,为餐饮行业提供更高效、更安全、更环保的排水解决方案。
总的来说,餐饮真空排水系统已不仅是技术选择,更是现代餐饮空间升级的必然趋势。它赋能地下空间开发,激活历史建筑价值,保障高端场所洁净,筑牢食品安全防线,推动智能化、绿色化发展。随着技术进步和应用推广,真空排水系统必将在更多餐饮场景中绽放光彩,为城市美好生活注入新动力。未来已来,让我们共同见证真空排水系统引领餐饮空间进入洁净、高效、智能的新时代!